Omezený provoz 21.–22. 5.
Vážení zákazníci, z provozních důvodů bude náš e-shop ve dnech 21. a 22. května nedostupný. Od 23. května jsme opět plně k dispozici. Děkujeme za pochopení.
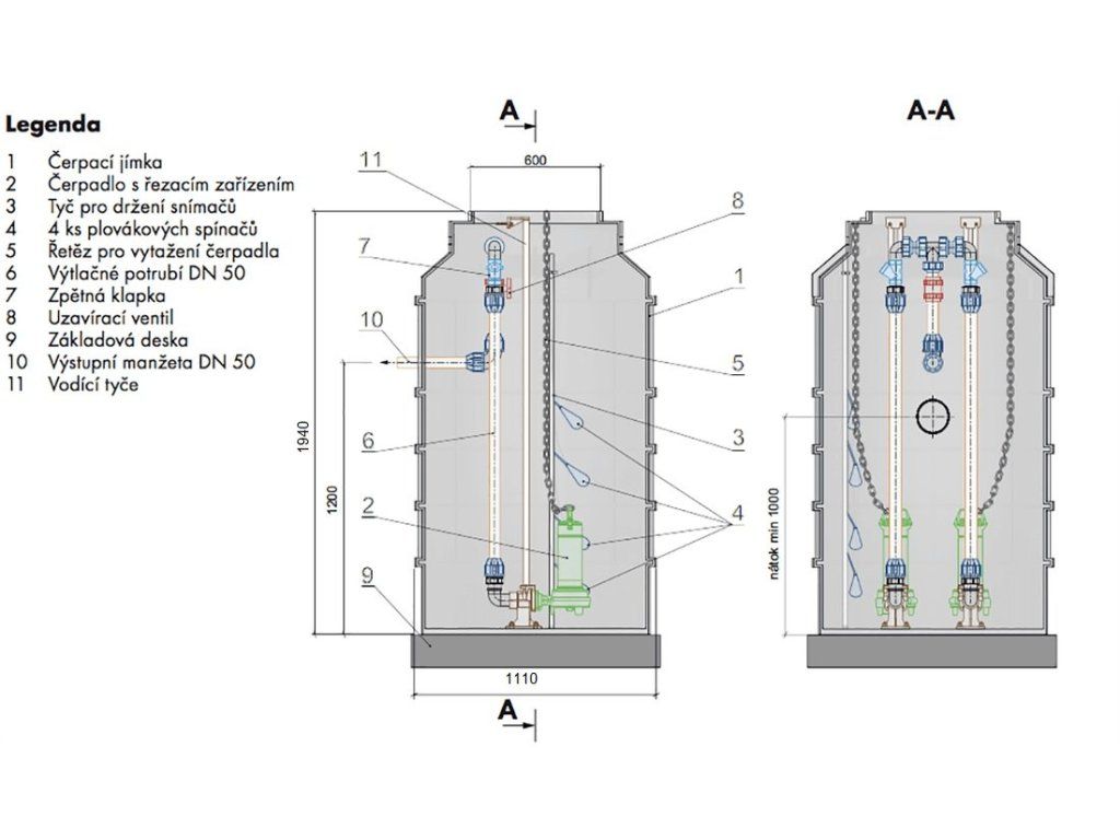
PUMPA black line Box 2 SE GQG 6-25 XTREME2 čerpací jímka včetně šachty a spínací skříňky, spouštěcí zařízení, plováky 4ks, 400V 2x1,5kW, kabely 10m ZB00044600
Kód: 51529Detailní popis produktu
Popis
Čerpací jímka 2SE GQG je určena pro čerpání splaškových vod z rodinných domů, rekreačních objektů, obytných celků, průmyslových provozů apod.. Čerpací šachta je vyrobena z materiálu PHDE a je osazena dvěma ponorným odstředivými čerpadly Calpeda GQG s řezacím zařízením, které je řízeno externími plovákovými spínači. Čerpadlo je vybaveno 10m kabelem, který je zakončen v rozvaděči. Čerpací jímku 2SE GQG je možné vybavit dalším příslušenstvím.
Výhody čerpacích jímek
- Kompletně vybavená čerpací jímka
- Rychlá a snadná instalace
- Kvalitní a spolehlivá ponorná čerpadla
- Dlouhodobá životnost
- Záruční a po záruční servis
Použití
- Rodinné domy
- Rekreační domy
- Obytné celky
- Průmyslové provozy
- Sportovní zařízení
Doplňkové parametry
| Kategorie: | Čerpací jímky |
|---|---|
| Záruka: | 24 |
| Hmotnost: | 50 kg |
| EAN: | 8596455025283 |
| Maximální průtok (l/min): | 560 |
| Maximální výtlak (m): | 25 |
| Vstupní napětí (V): | 3x400 |
| Frekvence (Hz): | 50 |
| Jmenovité proudy (A): | 2x3,8 |
| Jmenovité výkony motorů - P2 (kW): | 2x1,5 |
| Popis pro štítek: | Black Line Box 2 SE GQG 6-25 XTREME kabel 10m |
| Výtlačné hrdlo ("): | DN50 |
| Atest na pitnou vodu: | NE |
| Objem nádoby (l): | 1000 |
| Plovák: | ANO |
| Teplota média max. (°C): | 35 |
| Délka kabelu (m): | 10 |
| Stupeň krytí (IP): | 55 |
| Automatická tepelná ochrana: | NE |
| Ochrana proti chodu nasucho: | NE |
| Vlastní vypínač: | ANO |
| Regulace otáček: | NE |
| Kondenzátor: | NE |
| Oběžné kolo materiál: | litina |
| Konstrukce: | odstředivá |
| Řezací zařízení: | ANO |
| Zpětná klapka: | ANO |
| Výrobce: | PUMPA |
| EAN: | 8596455025283 |
| Recyklační poplatek: | 423 Kč |
Diskuze
Buďte první, kdo napíše příspěvek k této položce.
